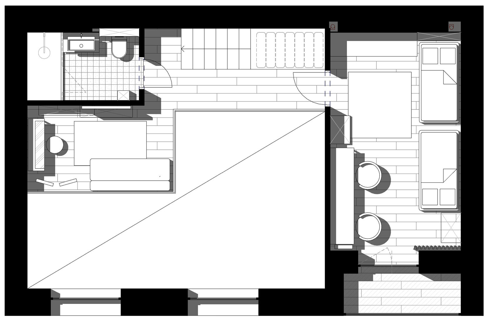
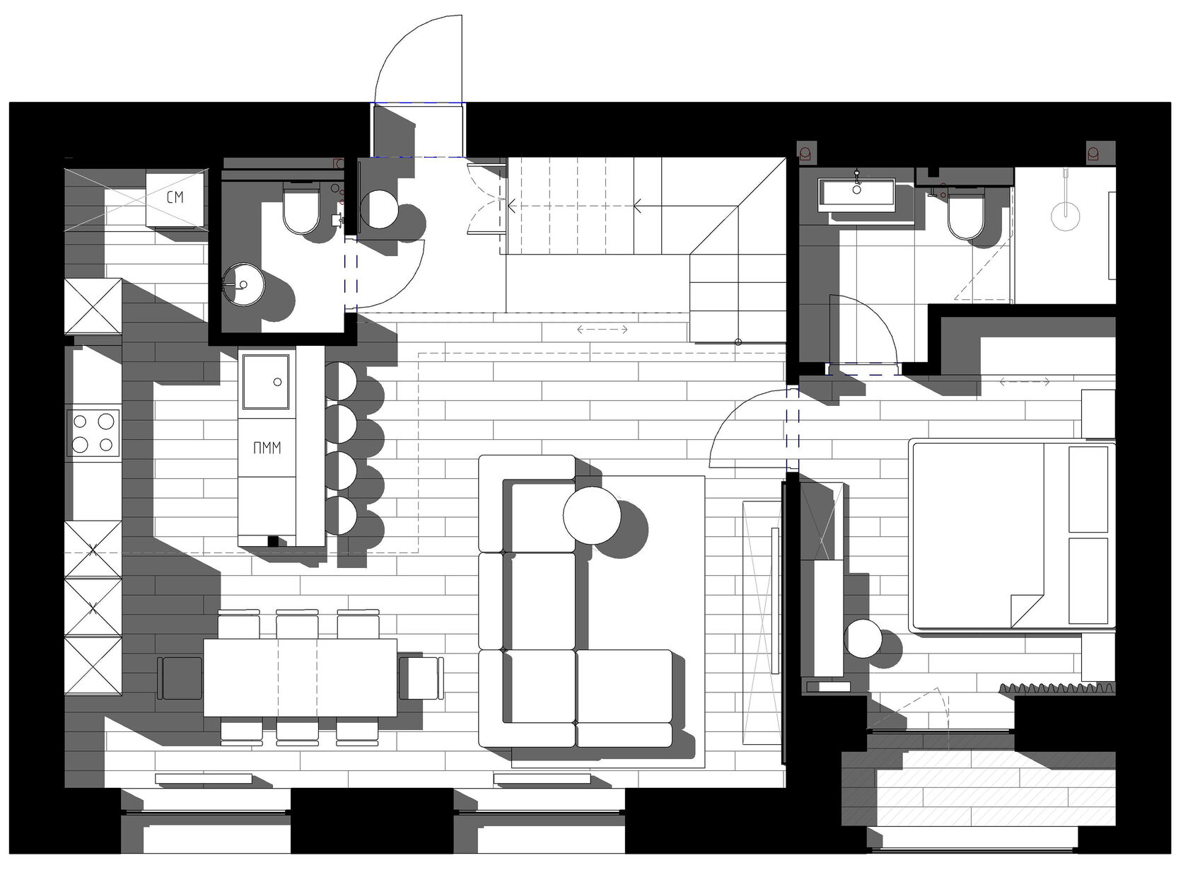
NASLEDIE

локация: г. Новосибирск,
клубный дом НАСЛЕДИЕ
год: 2025
площадь: 104 кв.м
104 м²

Смелый интерьер с яркими деталями. Лофт, бетон, кирпичи, цвет и драйв жизни заполняет все пространство. Максимально индивидуальное пространство, результат нашей синергии с хозяевами дома.

Обожаем 🖤